About This Project

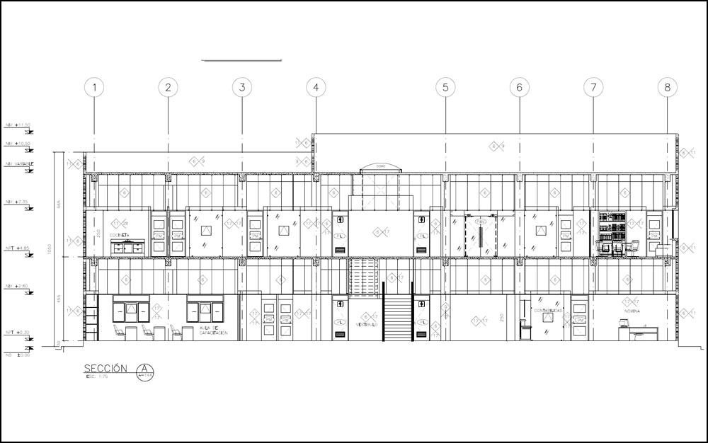
This two-storey administration office building in a Combined Circle Plant in northern Mexico, Baja California is located in a highly earthquake prone region. For this reason, a two thousand (2000) year period of return seismic spectrum was used.

The building is a reinforced concrete building without shear walls with moment resisting frames – capacity design – founded on piles and cross beams.

Location:

Mexico, Baja California

Services Provided:

Structural Engineering
Consulting Engineering

Client:

TECNICAS REUNIDAS & TSK

Category
Structural Engineering
Tags
Consulting Engineering, Residential Buildings, Structural Engineering