About This Project

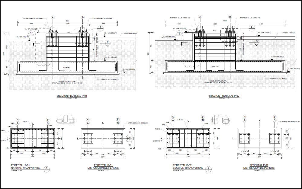
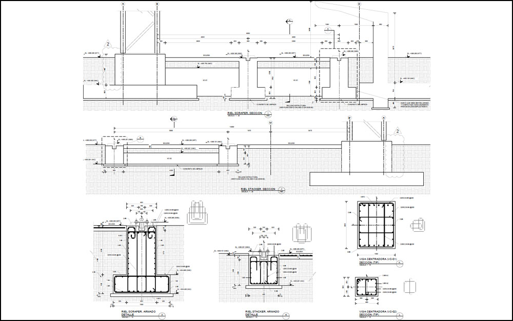
Delivered the geotechnical and structural design of this Industrial warehouse a used for storing raw materials.

The key here was optimization of the structural system to deliver a cost effective structural design. The warren truss rafters and truss columns at 8m centers bridged a span of 50m with a low steel mass to square meter value.

The building is founded on an embankment carefully designed to avoid the differential settlements from the massive portal stacker reclaimer moving inside the building.

A retaining wall was also designed to retain the stacked material. This whole operation worked out really well as differential settlements well avoided without the use of piles.

Location:

Colombia

Services Provided:

Structural Engineering
Geotechnical Engineering

Client:

OHLA - ECOCEMENTOS

Category
Geotechnical Engineering, Structural Engineering
Tags
Geotechnical Engineering, Industrial, Industrial Warehouse, Structural Engineering