About This Project

This single-storey control room office building in a Combined Circle Plant in northern Mexico, Baja California is located in a highly earthquake prone region. For this reason, a two thousand (2000) year period of return seismic spectrum was used.

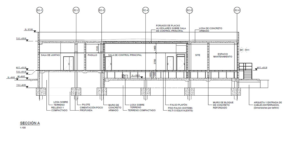
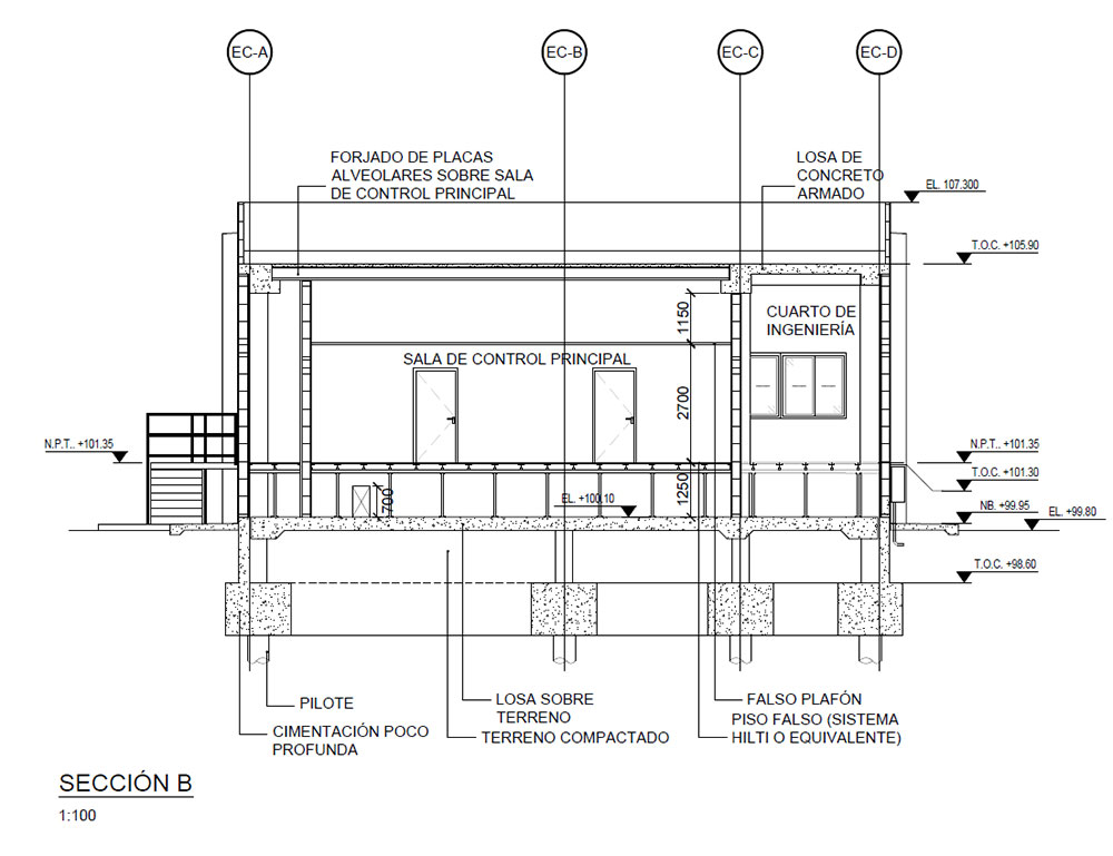
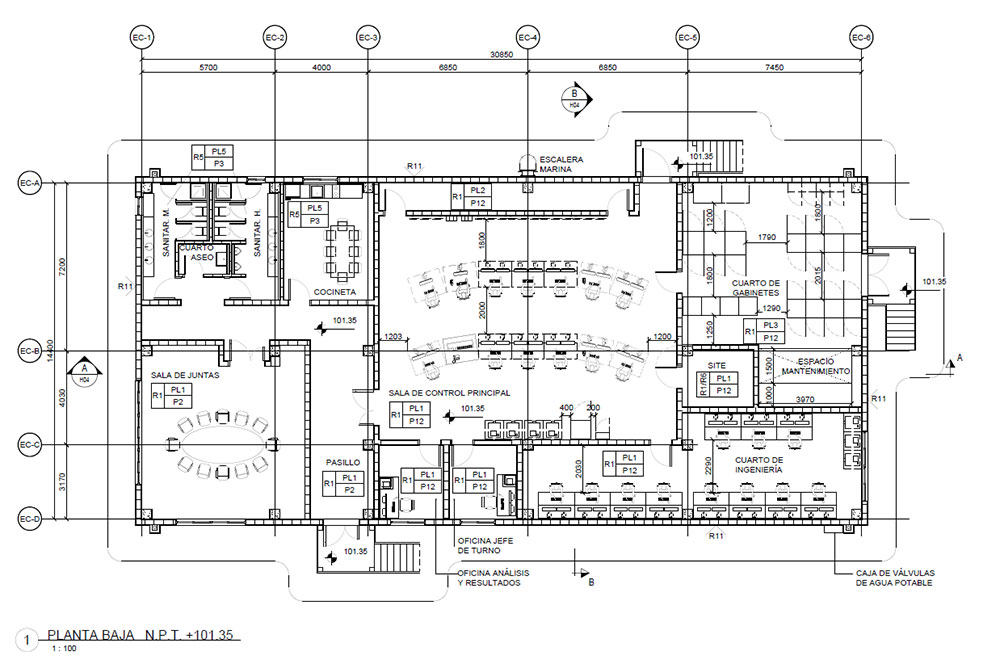
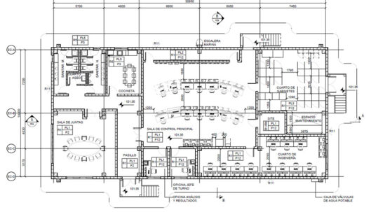
The building is a reinforced concrete building without shear walls with moment resisting frames – founded on piles and cross beams. The conference room required 14m span composite floors with steel beams to be checked extensively under seismic excitations as the initial preliminary design to use honeycomb precast concrete slabs was reversed by Versatilis.

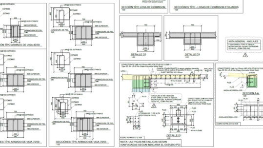
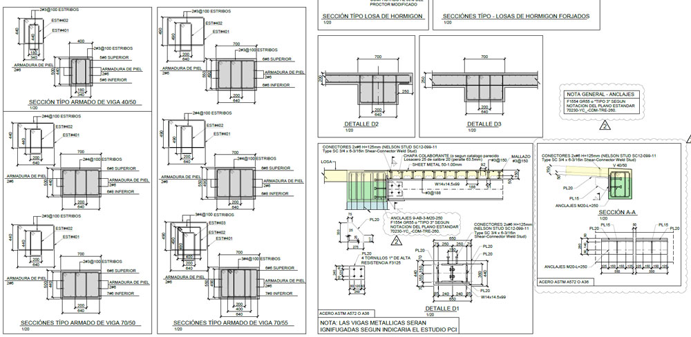
Plans

click to enlarge

Location:

Northern Mexico, Baja California

Services Provided:

Structural Engineering
Consulting Engineering

Client:

TECNICAS REUNIDAS & TSK

Category
Structural Engineering
Tags
Consulting Engineering, Residential Buildings, Structural Engineering