About This Project

Rising above plaza de Carmen in central Madrid, Thompson Hotel is a an exceptional 5-star luxury hotel.

Designed by the Madrid-based interior design and architecture studio López y Tena Arquitectos is blending traditional Madrid architecture with contemporary luxury using materials like marble, wood, leather, brass, and copper to reflect the city’s vibrant energy and local landscape.

An overall refurbishment of an existing 1930’s 12-story old concrete building and a new addition of a 10-story steel structure took place. The hotel has a swimming pool on the tenth floor, restaurants, luxury suites and event rooms.

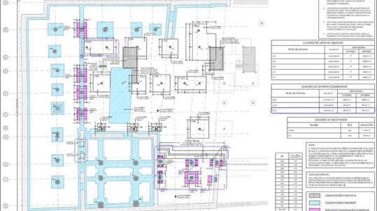
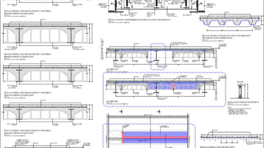
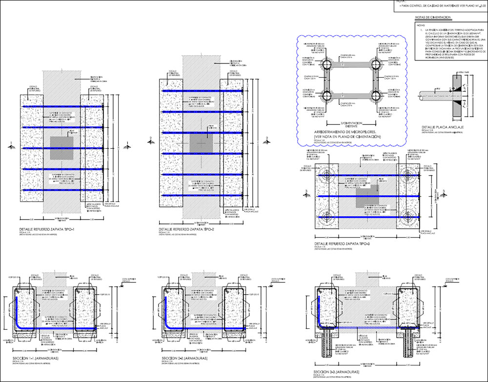
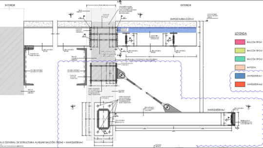
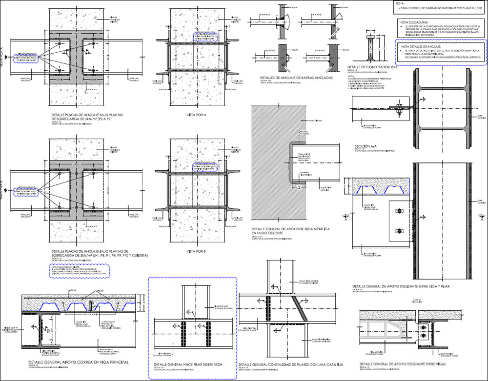
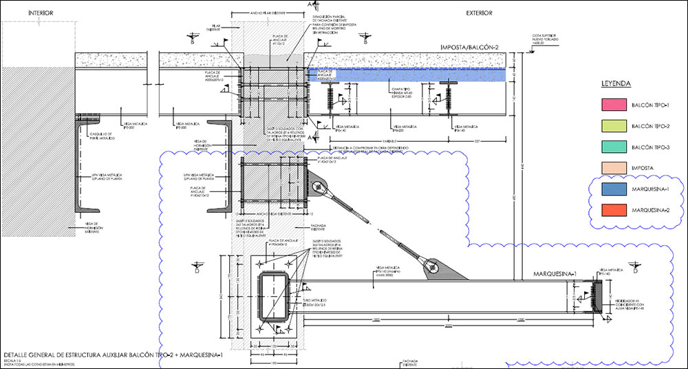
Plans

click to enlarge

Location:

Madrid, Spain

Services Provided:

Peer Review Structural Engineering
Peer Review Geotechnical Engineering
Structural and Geotechnical Engineering Consultant

Client:

EXACORP ONE

Category
Peer Review & Value Engineering, Structural Engineering
Tags
Commercial, Peer Review & Value Engineering, Structural Engineering