About This Project

Mokrá-Horákov is a municipality in Brno-Country District in the South Moravian Region of the Czech Republic. It has about 2,900 inhabitants.

The Mokra plant in the Czech Republic, completely renovated kiln lines making the plant technically up to date.

Bakken S.A. awarded Versatilis the conceptual and structural design of a new mill building, as part of the modernization project for the cement production Unit.

Versatilis delivered the structural design of the building successfully, peer reviewed by the local Czech Engineers.

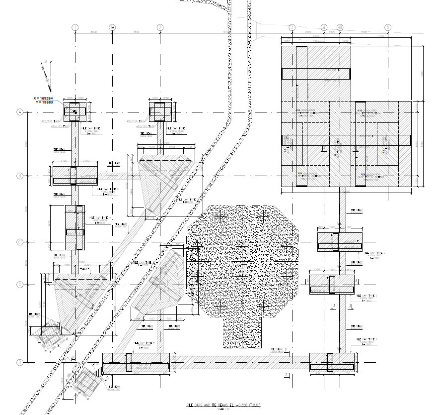
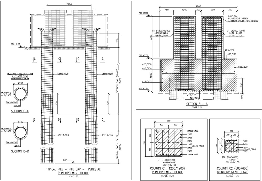
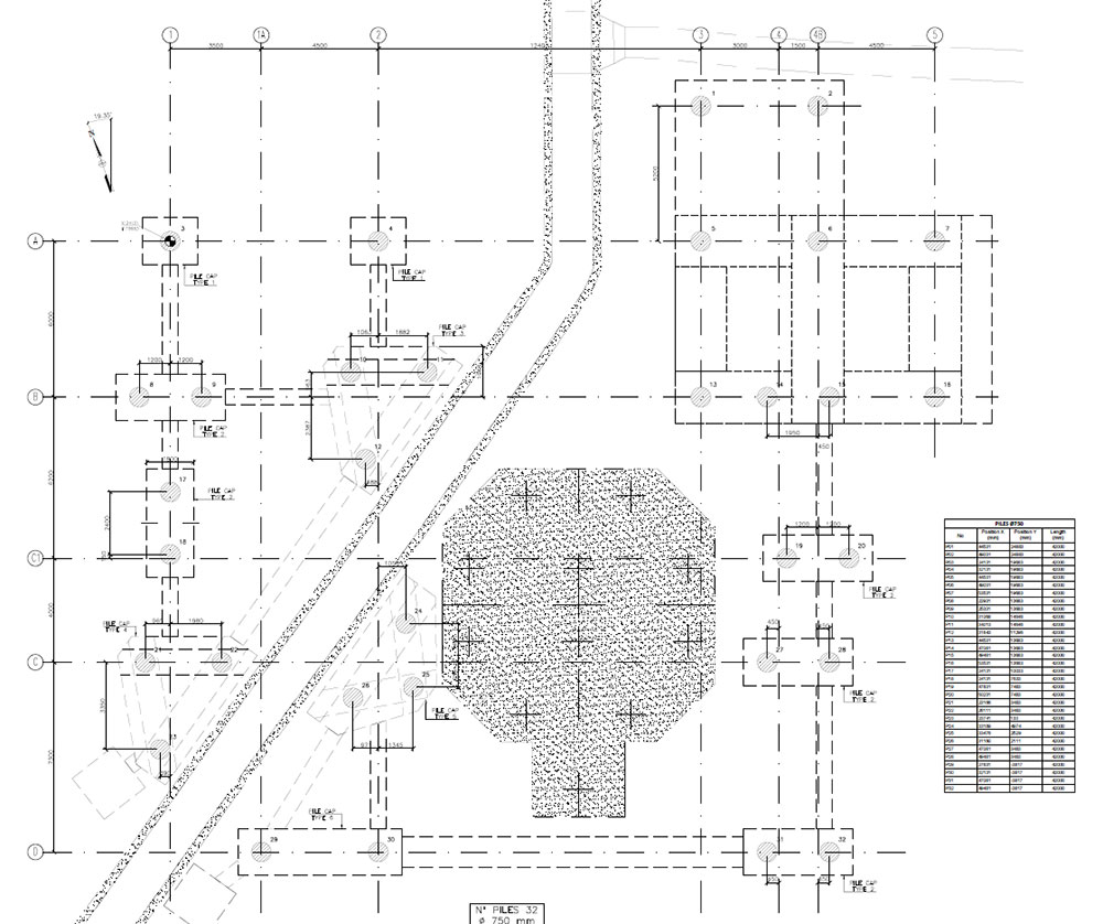
Plans

click to enlarge

Location:

Czech Republic

Service Provided:

Structural Engineering

Client:

BAKKEN S.A.

Category
Structural Engineering
Tags
Industrial, Structural Engineering